PISO EN VENTA EN CALLE CAMARENA
ALUCHE, MADRID
PRECIO DE VENTA:
480.000€
AGENDA TU VISITA
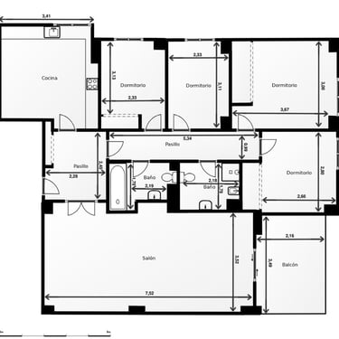
Amplia y luminosa vivienda de 133 m² construidos ubicada en la calle Camarena, 73, en una de las zonas más consolidadas del barrio de Aluche. Situada en una segunda planta con ascensor, dentro de una finca con portero y jardines privados tipo urbanización, esta propiedad ofrece una excelente calidad de vida para familias o quienes buscan espacio, comodidad y buena ubicación.
La vivienda se distribuye en 4 habitaciones, 2 baños, salón amplio con acceso a balcón, cocina independiente, armarios empotrados, trastero y plaza de garaje incluida en el precio. Cuenta con calefacción individual por gas natural.
Es una casa muy luminosa, ideal para entrar a vivir directamente, pero también con gran potencial de reforma para adaptarla a tu gusto y necesidades.
Ubicación excelente: A pocos metros de las estaciones de Metro Empalme (L5) y Renfe Fanjul (C5), así como de múltiples líneas de autobús con conexión directa a puntos clave como Atocha, Plaza España o Jacinto Benavente. Rodeada de supermercados, comercios, colegios, institutos, centros de salud, parques y zonas deportivas, como el Parque de Aluche y el polideportivo municipal.


613279411





































¿Tu piso está en máximos? habla con tu asesor y descubre su valor real hoy y vende al mejor precio con CASA IDEAL.

613279411
VIDEO

TOUR VIRTUAL
Contacto
info@madridcasaideal.com
Teléfono de contacto: 613279411
Dirección: Paseo Imperial, 14, edificio Monday, Arganzuela, 28005 Madrid
Síguenos en




